Hogar -> Juguetes -> Exteriores

Financiación de 2 a 36 meses (inmediata) +info
El parque infantil Torre Pagoda XL de la marca Masgames es una torre de madera cuadrada, fuerte y bonita para su jardín, además tiene un columpio de dos asientos para aumentar la diversión de los niños.
Pagoda es un parque infantil peculiar, se diferencia entre las otras torres infantiles de Masgames porque tiene la base de la plataforma elevada más grande, es decir, los niños tienen más espacio para jugar y divertirse. Además, el tejado tiene una forma distinta, está orientado a un templo chino antiguo, ideal para que los niños se sientan aventureros y en otra cultura.
Este parque infantil Pagoda XL con columpio doble consiste en una casita de madera elevada, la torre infantil dispone de dos tipos de escaleras que ayudarán a los niños a subir a la caseta infantil elevada. Una de las escaleras es en vertical (parte delantera) y la otra está inclinada, situada en la parte trasera de la torre infantil. Una vez arriba pueden jugar, vigilar, mirar, descansar, entre otras muchas cosas. Para bajar de la torre infantil Pagoda se utiliza un supertobogán, que rápidamente les conducirá a tierra. El columpio doble está apoyado a la torre infantil y lleva dos asientos.
El parque infantil Pagoda XL también dispone de un arenero, instalado en la base de la torre infantil.
La torre infantil Pagoda XL con columpio doble incluye las maderas, los asientos del columpio y sus enganches, la rampa de tobogán, los anclajes para fijarlos en un suelo blando de tierra o césped, los tapones de perno, las manijas y las instrucciones de montaje.
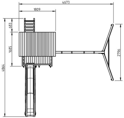
Las medidas de la torre de madera Pagoda son las siguientes:
4,673 m (largo) x 4,8664 m (ancho) x 3,384 m (alto)
La altura de la plataforma es de 1,50 m
La rampa del toboán es de 3 m de largo
Debe dejar 2 metros alrededor de zona de seguridad.
Puede comprar aparte complementos como un columpio, la campana, un telescopio y más que no se incluyen.
La rampa del tobogán es de HDPE que resiste bien la corrosión y, por tanto, es adecuado para estar en la intemperie.
En la rampa se le puede conectar en verano una manguera para que baje el agua por la rampa. Es en consecuencia una combinación que ofrece muchas posibilidades de diversión para los niños.
Los parques infantiles de la marca Masgames están homologados para el jardín de una casa particular. La gama de torres de juego Masgames está completamente desarrollada internamente por un equipo de experimentados diseñadores, para asegurar un resultado con construcciones sólidas, con un diseño fresco y atractivo. Para garantizar el máximo nivel de calidad y seguridad, todas las estructuras de juego son revisadas, probados y certificados por TÜV Nord
Advertencia: Edad recomendada de 3 a 12 años

33199 Granda SIERO - Principado de Asturias
33600 Mieres - Principado de Asturias





